MÓDULOS TRANSPORTABLES

Línea #MODORUBIK

#MODORUBIK

MÓDULOS CONECTADOS

Tu lugar en el mundo… Moderno y Creativo, sos vos… donde quieras estar

Formato constructivo en fábrica 100% en seco (MÓDULOS TRANSPORTABLES)

¿CÓMO SE ENTREGAN? Los modelos estándar presentados se entregan:

MODALIDAD SEMI-TERMINADOS 

  • Con base metálica (parrilla de perfiles de acero)
  • Muros, piso y techo con paneles SIP Foxpanel
  • Paneles de muros perimetrales terminados (panel Smart Siding)
  • Cubierta de techo con chapa T101 Nro. 25
  • Aberturas de aluminio media prestación
  • Cañería eléctrica y cajas en PVC 

Además todos son personalizables – Consultar por entrega llave en mano terminados 

Paneles SIP

Construcción más rápida y limpia en comparación con los métodos tradicionales.

Diseño

Posibilidad de personalizar los módulos según los requerimientos de cada proyecto.

Propuestas

Explora los planos y conceptos ya planificados por Fox Panel.
Déjanos tu mensaje

261 723 4893

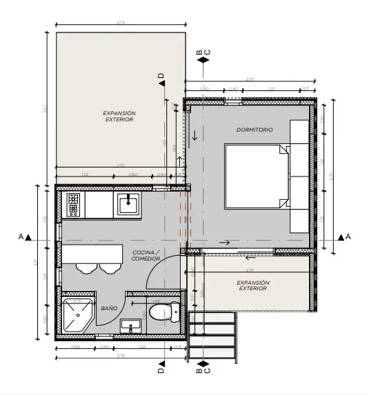
Modelo EGÝ

2 Módulos Espejado 21 M2

US$ 18000

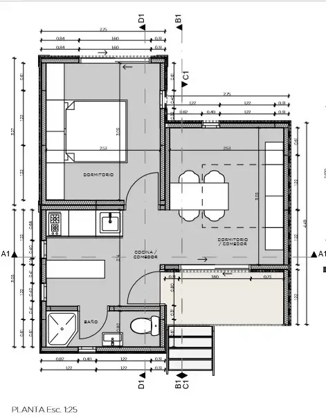
Modelo KETTÓ

2 Módulos Desfasado 21 M2

US$ 18500

Modelo HÁROM

3 Módulos Ampliado 30 M2

US$ 23200